Örökpanorámás, A+ energetikájú családi ház
Budapest II. kerület – Pesthidegkút

Többgenerációs otthon · tágas terek · csendes zöldövezet

+36209354254 gabor.krall@gmail.com

Főbb jellemzők

🏡 Pesthidegkút
Patakhegyi utca
🌄 Örökpanoráma
Budai-hegyek
A+ energetika
5 kW napelem
👨‍👩‍👧‍👦 Többgenerációs
külön szintek
🚗 Fűtött dupla garázs
🌳 Intim kert
automata öntözés
🏠 273 m²
bruttó alapterület
🌳 902 m²
telek
🛏 Nappali + 4 háló + dolgozószoba
🚿 2 fürdőszoba + 2 WC + bide
☀️ 0 Ft villany
🔥 ~130 000 Ft
éves gáz
💵 329 M Ft
irányár

Leírás

A természet közelségére, tágas terekre és többgenerációs élettérre vágyóknak valódi ritkaság ez a háromszintes, nappali + 4 hálószobás + dolgozószobás otthon. A bruttó 273 m²-es, jó állapotú ház egy 902 m²-es, összközműves telken épült a Patakhegyi utcában, ahol a telek lejtése a Budai-hegyek felé biztosítja az örökpanorámát.

Főbb jellemzők

Tető: Bramac hódfarkú tetőcserép
Nyílászárók: Minőségi fa keretes, korszerű, hőszigetelő dupla üvegezéssel
Energetika: A+ besorolás, 5 kW napelem szaldóelszámolással 2034-ig
Hűtés: Új klímák (földszint: 5 kW, emelet: 5× 3,5 kW)
Fűtés: Gázkazán + radiátorok, padlófűtés a hidegburkolatos helyiségekben
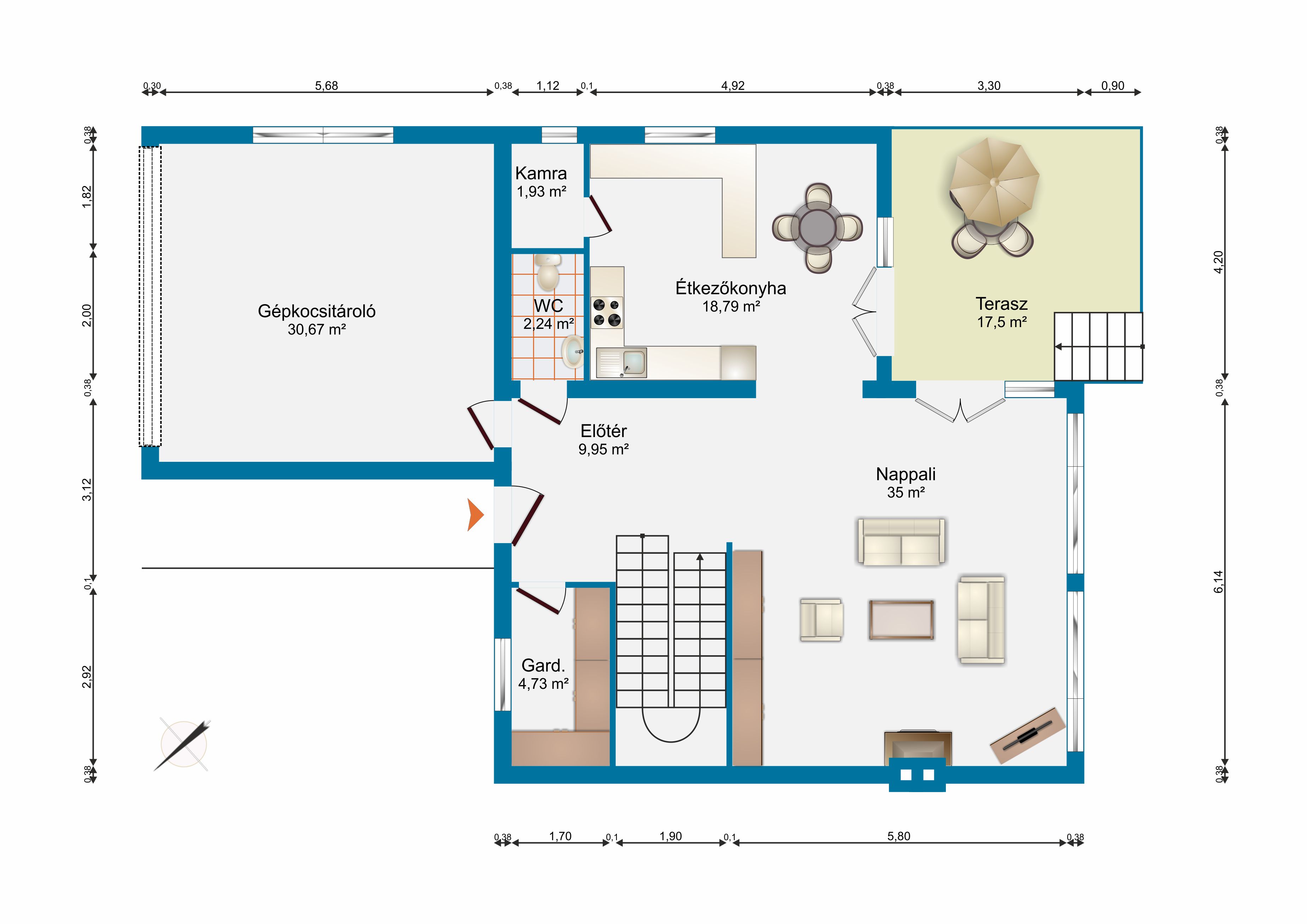
Fűtött garázs: Kétállásos (30,67 m²), motoros kapuval és ajtóval
Kert: Érett, gondozott, intim, nagy fákkal, négy zónás automata öntözőrendszer külön vízórával
Teraszok: Napfényes földszinti és emeleti panorámateraszok
Közművek: Víz, gáz, csatorna, 3×16 A áram
Éves rezsi: Gázszámla kb. 130 000 Ft, villanyszámla 0 Ft (napelem miatt)

Belső elrendezés

Földszint: Délnyugati tájolású nappali kert- és teraszkapcsolattal, étkezőkonyha, kamra, gardrób, vendég-WC, előtér.
Emelet: Négy hálószoba + dolgozó (összesen akár 5 háló), két fürdőszoba (az egyikben jakuzzi kád), külön WC bidével, gardrób, panorámás terasz.
Pince: Fűtött, ablakkal és külön bejárattal a kert felől – nyárikonyhaként, irodaként vagy lakótérként is használható, víz- és szennyvíz-előkészítéssel.

Környék

Csendes, barátságos szomszédság, a Pilis felől érkező friss levegő és erdei túraútvonalak.
A Francia Iskola, Waldorf, Ökumenikus Általános Iskola, Klebelsberg Általános Iskola és Gimnázium könnyen elérhető.
A Széphalom bevásárló központ, gyügyszertár, orvosi rendelő gyalogos távolságban található.
Közlekedés: A 57-es és 64-es buszokkal Hűvösvölgy 18 percre, onnan a Széll Kálmán tér 20 percen belül.

Ez az örökpanorámás, energiatakarékos családi ház ideális egy nagyobb család vagy többgenerációs együttélés számára.

Örökpanoráma a Budai-hegyek felé
Örökpanoráma a Budai-hegyek felé

Nappali · Étkező · Konyha

Emelet – hálószobák és dolgozó

Fürdőszobák

Fűtött pinceszint, külön bejárattal

Pinceszint

Önálló bejáratú, fűtött tér, amely lakótérként, irodaként vagy nyárikonyhaként is használható.

Kert és környezet

Garázs

Alaprajzok és elhelyezkedés

Drónvideó – környezet és panoráma

Ez az otthon a tér, a fény és a nyugalom találkozása

📞 +36 20 9 354 254
📞 Telefonálok